Brak ofert w notatniku
Brak ofert ostatnio przeglądanych
Hala na wynajem
- Bielsko-Biała, Centrum (nr oferty: HW-2159)
| Informacje ogólne: NJM-HW-2159 | |
| Nr oferty | HW-2159 |
| Lokalizacja | Bielsko-Biała |
| Dzielnica | Centrum |
| Powierzchnia | 9060.00 m2 |
| Pow. działki | 0.00 m2 |
| Cena | 181 200 zł |
| Cena m2 | 20 zł/m2 |
| Opis oferty: |
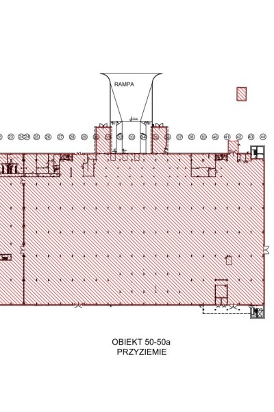
Na wynajem hala (nr 50) o przeznaczeniu magazynowo - produkcyjnym, pow. ok. 9400 mkw., zlokalizowana w przemysłowej części miasta Bielska – Białej – Komorowicach Krakowskich przy ul. Komorowickiej.
DOSKONAŁA LOKALIZACJA:
OPIS TECHNICZNY:
≈ OFERTA TYLKO U NAS - ZAPRASZAMY NA PREZENTACJĘ ≈
Powyższy opis nie stanowi oferty handlowej w rozumieniu art. 66 Kodeksu Cywilnego, a dane w nim zawarte mają charakter informacyjny.
Istnieje możliwość przebudowy hal na funkcje usługowo-handlowe oraz rekreacyjno-sportowe, a także wykonania dużych, przeszklonych witryn.
Dostępność powierzchni: od ok. 1 000 m² do ok. 10 000 m². Zakres oraz sposób rozliczenia nakładów związanych z ewentualną adaptacją – do indywidualnych uzgodnień.
DOSKONAŁA LOKALIZACJA:
- Przemysłowa dzielnica miasta, kompleks budynków o przeznaczeniu magazynowo –produkcyjnym; w pobliżu liczne hurtownie, sklepy usługowo - handlowe, przystanek autobusowy około vis a vis wjazdu na teren obiektu, około 2 km dworzec PKP, około 1,5 km galeria SFERA, około 1 km galeria Sarni Stok;
- Bardzo dobre połączenie z obwodnicą miasta drogą S1 (kierunek Cieszyn - Zwardoń)
- zagospodarowanie terenu: parkingi wokół obiektu na kilkadziesiąt samochodów dla pracowników i klientów firm
- bardzo dobry dojazd dla TIR-ów, do dyspozycji najemcy duży utwardzony plac manewrowy bez ograniczeń oraz ogrzewane doki załadowczo - wyładowcze; Wewnętrzna komunikacja wokół budynków odbywa się drogą o nawierzchni bitumicznej.
- Nieruchomość ochraniana (monitoring, ochrona fizyczna)
OPIS TECHNICZNY:
- Dwukondygnacyjny, niepodpiwniczony budynek produkcyjno-magazynowy wzniesiony w drugiej połowie lat 1990-tych o pow. ok. 9.060 mkw.
- konstrukcja szkieletowa stalowa o ścianach osłonowych murowanych z cegły pełnej, opartych na podwalinach prefabrykowanych (parter) oraz na bazie blach fałdowanych (na piętrze), ławy i stopy fundamentowe z betonu żwirowego,
- strop wewnętrzny z prefabrykowanych płyt żelbetowych oraz strop płytowy wylewany, zwieńczony dachem w konstrukcji stalowej pokrytym blachą fałdowaną (z warstwą ocieplenia z wełny mineralnej).
- stolarka okienna: w części produkcyjnej w ramach stalowych, w części biurowej okna PCV, dwuszybowe.
- stolarka drzwiowa: wewnętrzna płycinowa oraz pcv - typowa. Drzwi zewnętrzne pcv szklone, wrota w części produkcyjno-magazynowej stalowe, dwuskrzydłowe; W części spedycyjnej bramy segmentowe;
- posadzka przemysłowa, niepyląca (nośność 5t/1mkw.)
- obiekt wyposażony w instalację: elektryczną, wodno-kanalizacyjną, ciepło z sieci miejskiej – Therma (grzejniki, nadmuchy wentylacji nawiewno-wywiewnej), gazową, teletechniczna, odgromową, wentylacji grawitacyjnej i mechanicznej, odgromową, hydrantową, p.poż tryskacze, monitoring i alarm, klimatyzacja;
- hala wyposażona jest w dwie stalowe antresole o nośności: 0,5 t/1 mkw. (antresola wyposażona w przenośnik taśmowy pochyły);
- 6 x doki załadowczo - wyładowcze (wyposażone w nagrzewnice); w tym 2 x rampa dokowa z 2 x załadunkiem i rozładunkiem bocznym;
- wymiary hali: 120 m x 75 m
- rozstaw słupów: 6 m x 12 m oraz 4 m x 6 m
- wysokość hali: od ok. 4,8 m (5,8 m do szczytu)
NAJEMCA PŁACI:
- czynsz najmu: 20 zł netto/mkw. pow. produkcyjno - magazynowa; 35 zł netto/mkw. pow.biurowo - socjalna (stan istniejący)
- opłata serwisowa: 1 zł netto/ 1 mkw. wynajmowanej powierzchni
- media: prąd, woda, C.O. - według zużycia
- kaucja: 2 - miesięczny czynsz
* Istnieje możliwość najmu dodatkowej powierzchni zlokalizowanej na pierwszym piętrze budynku o powierzchni ok. 8 200 m². Nośność stropu wynosi 1,5 t/m², a wysokość pomieszczeń ok. 8,80 m. Pierwsze piętro wyposażone jest w szyb windowy. Powierzchnia przeznaczona jest do generalnego remontu i obecnie znajduje się w stanie surowym.
≈ OFERTA TYLKO U NAS - ZAPRASZAMY NA PREZENTACJĘ ≈
Powyższy opis nie stanowi oferty handlowej w rozumieniu art. 66 Kodeksu Cywilnego, a dane w nim zawarte mają charakter informacyjny.
| Pośrednik odpowiedzialny zawodowo: | |
| Nr licencji | 2663 |





































