Brak ofert w notatniku
Brak ofert ostatnio przeglądanych
| Informacje ogólne: EUR-MW-6378 | |
| Nr oferty | MW-6378 |
| Lokalizacja | Bielsko-Biała |
| Dzielnica | Mikuszowice Krakowskie |
| Powierzchnia | 111.00 m2 |
| Pow. działki | 0.00 m2 |
| Cena | 3 190 zł |
| Cena m2 | 29 zł/m2 |
| Opis oferty: |
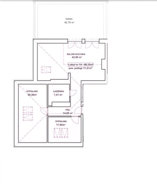
3-pokojowy apartament 90 m2 z dużym, widokowym i słonecznym tarasem (43 m2),
miejscem postojowym na granicy Bielska-Białej i Wilkowic!
Przestronny i jasny apartament położony w zacisznym miejscu, wśród dużej ilości zieleni, na łagodnym południowym stoku Magurki (na wysokości 500 metrów n.p.m.), z którego rozciąga się przepiękny widok na pasma górskie Beskidu Małego i Beskidu Śląskiego ze szczytami Magurką Wilkowicką, Szyndzielnią i Klimczokiem. Do mieszkania przynależy miejsce postojowe oraz piwnica.
Lokalizacja budynku zapewnia pełny dostęp do infrastruktury miejskiej - ok. 500 metrów komunikacji miejskiej.
W pobliżu nieruchomości:
Centrum Bielska-Białej 6 km
Centrum Handlowe Gemini Park 4 km
Kryty basen kąpielowy 5 km
Obwodnica w kierunku: Katowic, Cieszyna, Żywca
Centrum Wilkowic 3 km (urząd miejski, poczta, bank, apteka, przychodnia ZOZ, sklepy spożywcze i przemysłowe.
DANE TECHNICZNE:
- okna: PCV
- podłogi: panele, w łazience gres
- ogrzewanie: gazowe - wspólna kotłownia dla budynku
- Opłata do Wspólnoty Mieszkaniowej: ok. 647,42 zł/miesięcznie (w tym administracja, fundusz remontowy) + zaliczki na media: woda zimna, woda ciepła, C.O ok. 411 zł + dodatkowo płatny: prąd oraz wywóz śmieci - płatny od osoby
ROZKŁAD POMIESZCZEŃ:
- salon z aneksem kuchennym i dużym tarasem łącznie ponad 80 m2 ( z czego taras 42 m2), , sypialnia (29 m2), pokój (18 m2), łazienka (7 m2), hol,
Dodatkowo: miejsce parkingowe (dodatkowo płatne) oraz piwnica (3 m2)
Do wspólnego korzystania pomieszczenie na rowery i wózki.
Powierzchnia całkowita mieszkania ok. 111 m2 + taras 43 m2
Powierzchnia użytkowa mieszkania ok. 88 m2
2piętro w 2 piętrowym budynku
NAJEMCA PŁACI:
Czynsz najmu: 3 190 zł + 300 zł miejsce parkingowe na zamkniętym parkingu
(możliwość wynajęcia garażu za dodatkową opłatą)
Opłata do Wspólnoty Mieszkaniowej: ok. 647,42 zł/miesięcznie (w tym administracja, fundusz remontowy) + zaliczki na media: woda zimna, woda ciepła, C.O ok. 411 zł + dodatkowo płatny: prąd oraz wywóz śmieci - płatny od osoby
Kaucja: dwukrotność czynszu
Wynagrodzenie biura: 1-czynsz najmu
ZAPRASZAMY NA PREZENTACJĘ!
UMOWA NA MINIMUM 12 MIESIĘCY!
PRZY WYNAJMIE DLA OSOBY PRYWATNEJ WYMAGANA FORMA NAJMU OKAZJONALNEGO!
| Pośrednik odpowiedzialny zawodowo: | |
| Nr licencji | 10801 |







































